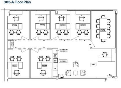
Commercial For Lease In Calgary, Alberta
$14.00 /year /sq. ft.None Beds
-
Details
-
Map
-
Demographics
-
Street View
-
Get Directions
-
Advertising



