Button CopyPathCircle CloseCircle Left ArrowArrow Down Icon GreyClosecirclecircleBurger
Image 1
Image 2
Image 3
$375,000

3+2 Beds

2 Baths

QuickQuoteTM: Not Available

Longueuil (Le Vieux-Longueuil) QC, J4K 4R4

MLS® # 19318334

Property Information:

Project for experienced renovator or contractor. Strategic location in Longueuil near all services: schools, daycares, grocery stores, pharmacies and the Longueuil-Université-de-Sherbrooke metro station. Interesting zoning! ZONE H36-038 (H1-H2-H3) offering several possibilities. Second entrance door on the side leading to the basement. Kitchenette in the basement. Possibility of 5 bedrooms. Possibility of 2 full bathrooms. Electrical panel with 200 AMP, circuit breakers, copper wiring (electrician expertise 2025 available). Poured concrete foundation.

***Other*** The buyer agrees to take the property in the condition in which it is found, declaring to have seen and examined the immovable to his satisfaction. The buyer acknowledges that it is his responsibility to verify himself with the competent authorities that the destination he intends to give to the property is in accordance with the laws and regulations in force.

Please note that this property is also listed for sale as land only. See other Centris listing 25592359.

Inclusions: The property is sold as is, with all its remaining contents inside and out.

Exclusions : The property is sold as is, with all its remaining contents inside and out.

Building Features:

  • Style: Detached
  • Foundation: Poured concrete
  • Size: 8.38 x 11.34 METRE
  • Heating Energy: Electricity
  • Water Supply: Municipality
  • Sewage System: Municipality

Taxes:

  • Municipal Tax: $2,200
  • School Tax: $208
  • Annual Tax Amount: $2,408

Property Assessemnt:

  • Lot Assessment: $213,100
  • Building Assessment: $81,700
  • Total Assessment: $294,800

Property Features:

  • Bedrooms: 3+2
  • Bathrooms: 2
  • Built in: 1950
  • Irregular: Yes
  • Lot Depth: 26.21 Metre
  • Lot Frontage: 15.49 Metre
  • Lot Size: 406.00 Square Metres
  • Zoning: RESI

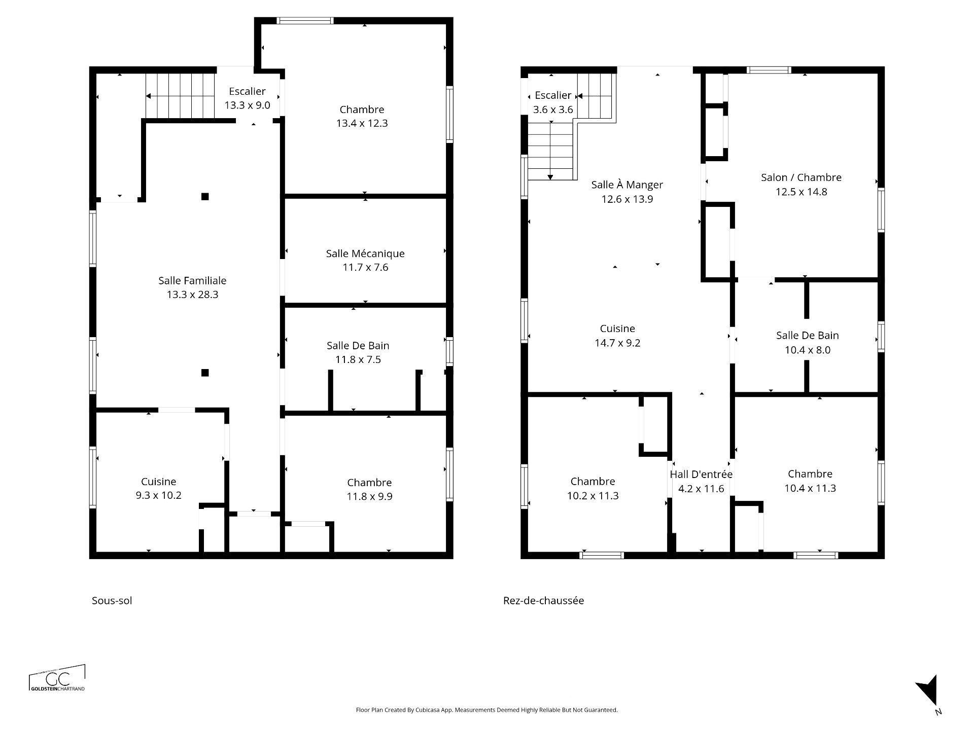
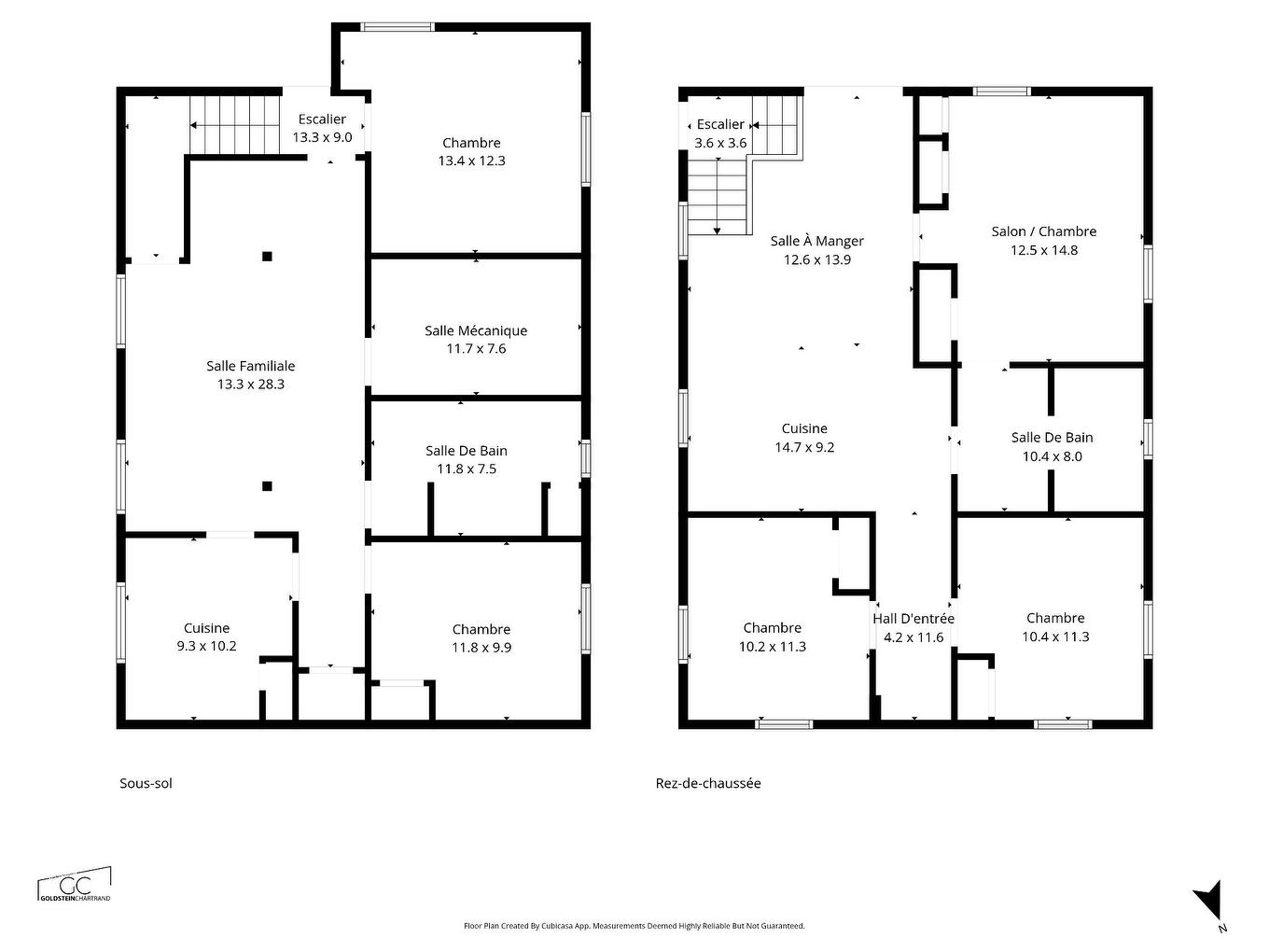
Rooms:

  • Bedroom - Irregular Ground Level 3.17 m x 3.53 m Flooring: Other - glued tiles
  • Bedroom - Irregular Ground Level 3.15 m x 3.40 m Flooring: Other - glued tiles
  • Kitchen - Irregular Ground Level 2.62 m x 3.20 m Flooring: Other - glued tiles
  • Dining - Irregular Ground Level 2.82 m x 1.27 m Flooring: Laminate floor
  • Bathroom Ground Level 2.36 m x 3.17 m Flooring: Ceramic
  • Other - Irregular Ground Level 3.35 m x 4.55 m Flooring: Other - glued tiles
  • Bedroom - Irregular Basement Level 3.89 m x 3.51 m Flooring: Other - glued tiles
  • Other - Irregular Basement Level 2.26 m x 3.61 m Flooring: Concrete
  • Family - Irregular Basement Level 4.09 m x 4.60 m Flooring: Carpet
  • Kitchen - Irregular Basement Level 3.20 m x 2.90 m Flooring: Other - glued tiles
  • Bathroom - Irregular Basement Level 3.51 m x 2.29 m Flooring: Other - glued tiles Note: washer-dryer
  • Bedroom - Irregular Basement Level 2.97 m x 3.53 m Flooring: Other - glued tiles

Convert Measurement to:


Data provided by: Centris - 600 Ch Du Golf, Ile -Des -Soeurs, Quebec H3E 1A8
All information displayed is believed to be accurate but is not guaranteed and should be independently verified. No warranties or representations are made of any kind. Copyright© 2021 All Rights Reserved.

Location of 2092 Rue Westgate, Longueuil (Le Vieux-Longueuil), QC, J4K 4R4

Demographic Information of 2092 Rue Westgate, Longueuil (Le Vieux-Longueuil), QC, J4K 4R4

Life Stage

Young Singles

Employment Type

Service Sector

Average Household Income

$77,318.36

Average Number of Children

1.79

Household Population

Household Structure

Age of Population

Education

Education Level

No certificate/diploma/degree

32.0 %

High school certificate or equivalent

23.63 %

Apprenticeship trade certificate/diploma

15.36 %

College/non-university certificate

15.53 %

University certificate (below bachelor)

1.45 %

University Degree

12.03 %

Commuter

Travel To Work

By Car

70.14 %

By Public Transit

23.14 %

By Walking

1.88 %

By Bicycle

0.78 %

By Other Methods

4.06 %

Cultural Diversity

Knowledge of Official Language

Mother Tongue

Building Information

Building Type

Apartments (Low and High Rise)

90.08 %

Houses

9.92 %

Own Vs. Rent