Longueuil (Saint-Hubert) QC, J3Y 2K8
Property Information:
Welcome to this delightful family home in peaceful St-Hubert! Semi-renovated and brimming with potential, it offers 3 bedrooms, a full bathroom, and a versatile basement ready to become your dream family room, cozy home office, or an extra bedroom. The spacious lot is a true highlight--perfect for kids' playtime, pets to roam, or creating your own backyard oasis. Bright, warm, and welcoming, this home is ideally located near schools, parks, shops, and transit. A wonderful blend of comfort, convenience, and possibilities--come fall in love!
Charming family home in peaceful St-Hubert! Semi-renovated with great potential, it offers 3 bedrooms, a full bathroom, and a versatile basement that can be finished to your needs. Enjoy a spacious lot, perfect for kids, pets, or future outdoor projects. Bright, warm, and ideally located near schools, parks, shops, and transit -- a home full of comfort and possibilities!
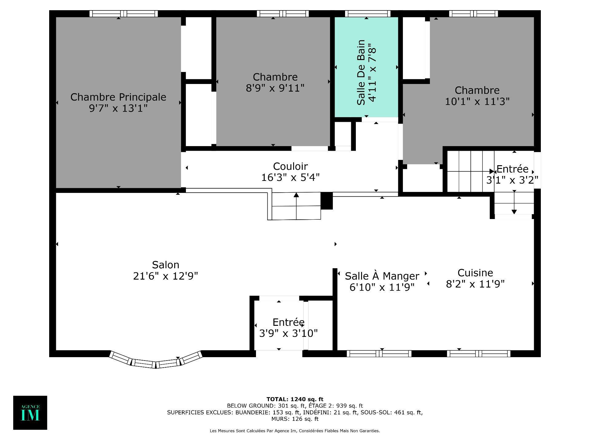
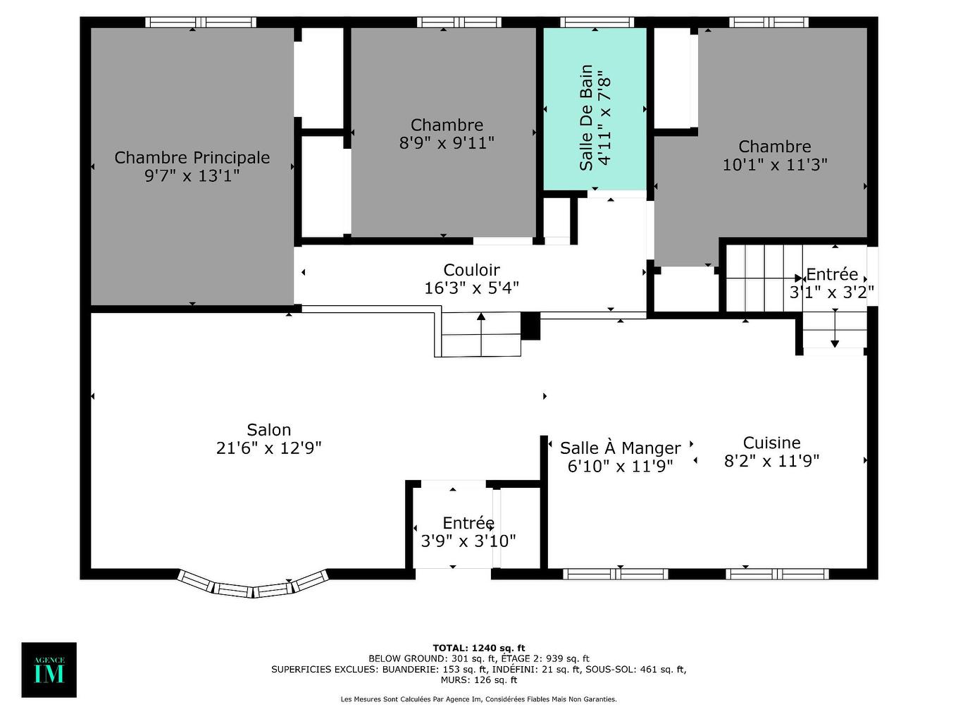
- This property offers 3 spacious bedrooms, ideal for a family or a home office.
- A well-maintained full bathroom provides comfort and functionality.
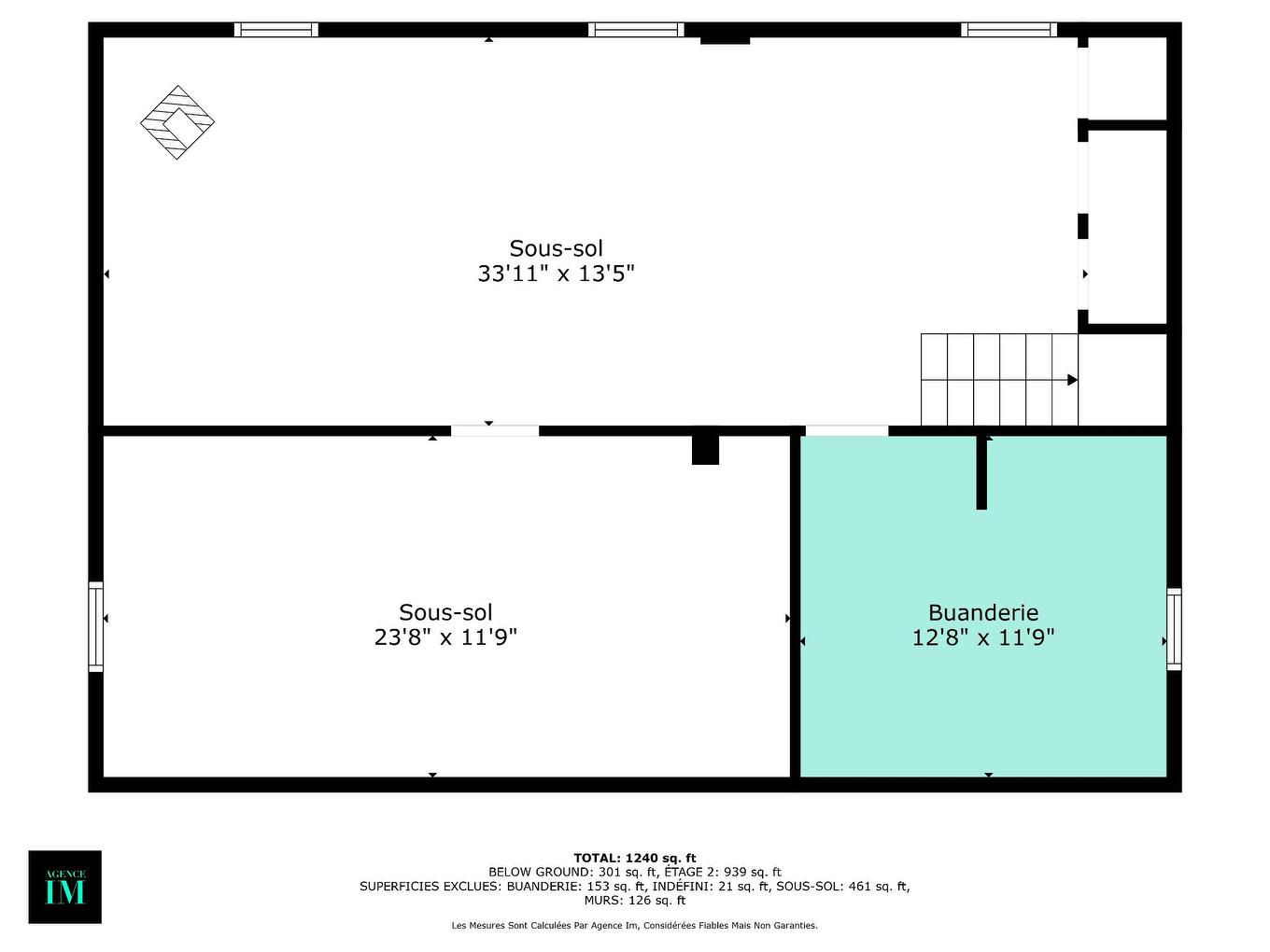
- The unfinished basement offers tremendous potential: the space could accommodate an additional bedroom, a family room, or extra storage to suit your needs.
- The large backyard provides privacy, greenery, and multiple possibilities for development (pool, garden, play area, etc.).
Inclusions: Light fixture, dishwasher, basement Refrigerator, washer, dryer, kitchen stove.
Exclusions : Blinds, curtain rods, curtains
Building Features:
- Style: Detached
- Basement: 6 feet and more, Partially finished
- Driveway: Asphalt
- Fireplace-Stove: Wood stove
- Foundation: Poured concrete
- Lot: Fenced
- Parking: Driveway
- Property or unit amenity: Central air conditioning, Fire detector, Air exchange system
- Proximity: Highway, Daycare centre, Park, Bicycle path, Elementary school, High school, Public transportation
- Roofing: Elastomeric membrane
- Siding: Brick
- Size: 11.6 x 8.19 METRE
- Topography: Flat
- Heating System: Forced air
- Heating Energy: Wood, Electricity
- Water Supply: Municipality
- Sewage System: Municipality
Taxes:
- Municipal Tax: $2,698
- School Tax: $286
- Annual Tax Amount: $2,984
Property Assessemnt:
- Lot Assessment: $212,800
- Building Assessment: $206,000
- Total Assessment: $418,800
Property Features:
- Bedrooms: 3
- Bathrooms: 1
- Built in: 1967
- Irregular: Yes
- Lot Depth: 27.43 Metre
- Lot Frontage: 18.29 Metre
- Lot Size: 501.70 Square Metres
- Zoning: RESI
- No. of Parking Spaces: 3
Rooms:
- Living Ground Level 5.18 m x 3.51 m 17 ft x 11.6 ft Flooring: Laminate floor
- Kitchen Ground Level 4.57 m x 3.51 m 15 ft x 11.6 ft Flooring: Linoleum
- Primary Bedroom Ground Level 3.99 m x 2.97 m 13.1 ft x 9.9 ft Flooring: Laminate floor
- Bedroom Ground Level 2.97 m x 2.62 m 9.9 ft x 8.7 ft Flooring: Laminate floor
- Bedroom Ground Level 3.00 m x 2.95 m 9.10 ft x 9.8 ft Flooring: Laminate floor
- Bathroom Ground Level 2.21 m x 1.45 m 7.3 ft x 4.9 ft Flooring: Ceramic
- Family Basement Level 10.06 m x 3.86 m 33 ft x 12.8 ft Flooring: Other - EPOXY
- Laundry Basement Level 3.71 m x 3.05 m 12.2 ft x 10 ft Flooring: Other - EPOXY
- Workshop Basement Level 6.86 m x 3.35 m 22.6 ft x 11 ft Flooring: Other - EPOXY
Convert Measurement to:
Data provided by: Centris - 600 Ch Du Golf, Ile -Des -Soeurs, Quebec H3E 1A8
All information displayed is believed to be accurate but is not guaranteed and should be independently verified. No warranties or representations are made of any kind. Copyright© 2021 All Rights Reserved.
Market Price Trends
Location of 5075 Rue Gilbert, Longueuil (Saint-Hubert), QC, J3Y 2K8
Demographic Information of 5075 Rue Gilbert, Longueuil (Saint-Hubert), QC, J3Y 2K8
Life Stage
Midlife FamiliesEmployment Type
Service Sector/White CollarAverage Household Income
$96,751.17Average Number of Children
1.74Household Population
Household Structure
Age of Population
Education
Education Level
No certificate/diploma/degree
20.02 %High school certificate or equivalent
28.24 %Apprenticeship trade certificate/diploma
15.04 %College/non-university certificate
19.38 %University certificate (below bachelor)
1.55 %University Degree
15.77 %Commuter
Travel To Work
By Car
79.21 %By Public Transit
14.29 %By Walking
0.48 %By Bicycle
1.51 %By Other Methods
4.51 %Cultural Diversity
Knowledge of Official Language
Mother Tongue
Building Information
Building Type
Apartments (Low and High Rise)
24.68 %Houses
75.32 %






























































