Mont-Royal QC, H3P 1S2
Property Information:
Lovely semi-detached home located on a quiet street, with a large corner lot. It features 4 bedrooms on the second floor, 2 full bathrooms, and a powder room. Very rare in this price range, the 2 upstairs bathrooms offer an ideal layout, including one that can serve as a master suite. The garage has been converted into a living space, creating a large room perfect for a living room or home office. The basement offers plenty of storage, an office, and a spacious family room. Close to amenities, this property offers multiple possibilities.
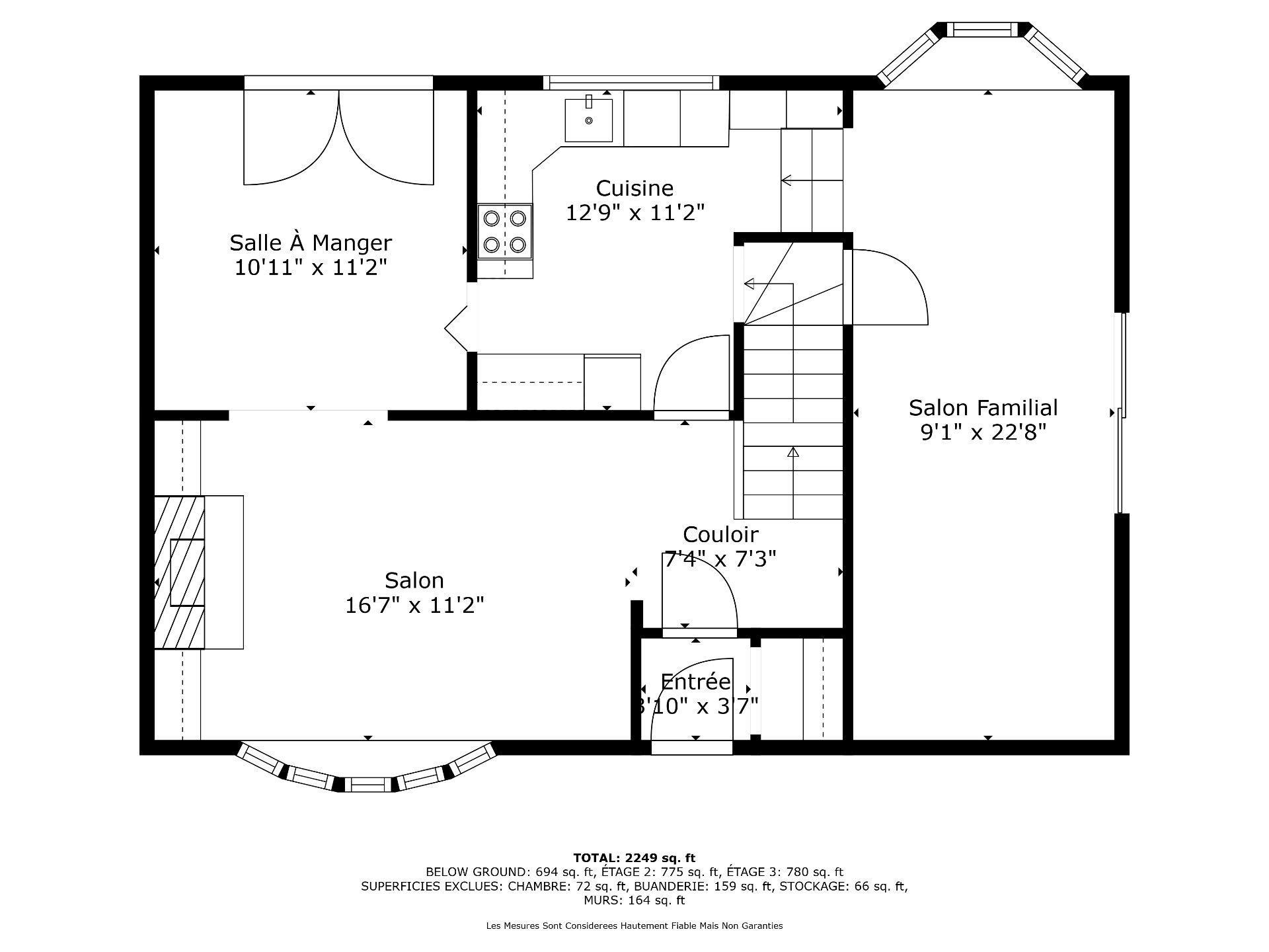
Main Floor -- 8'7" Ceilings
- Enclosed vestibule
- Entrance hall opening onto a living room with bay window and brick fireplace
- Dining room with French doors leading to a large wooden deck
- Bright kitchen with a large window
- Spacious family room with wooden patio door providing access to the side yard
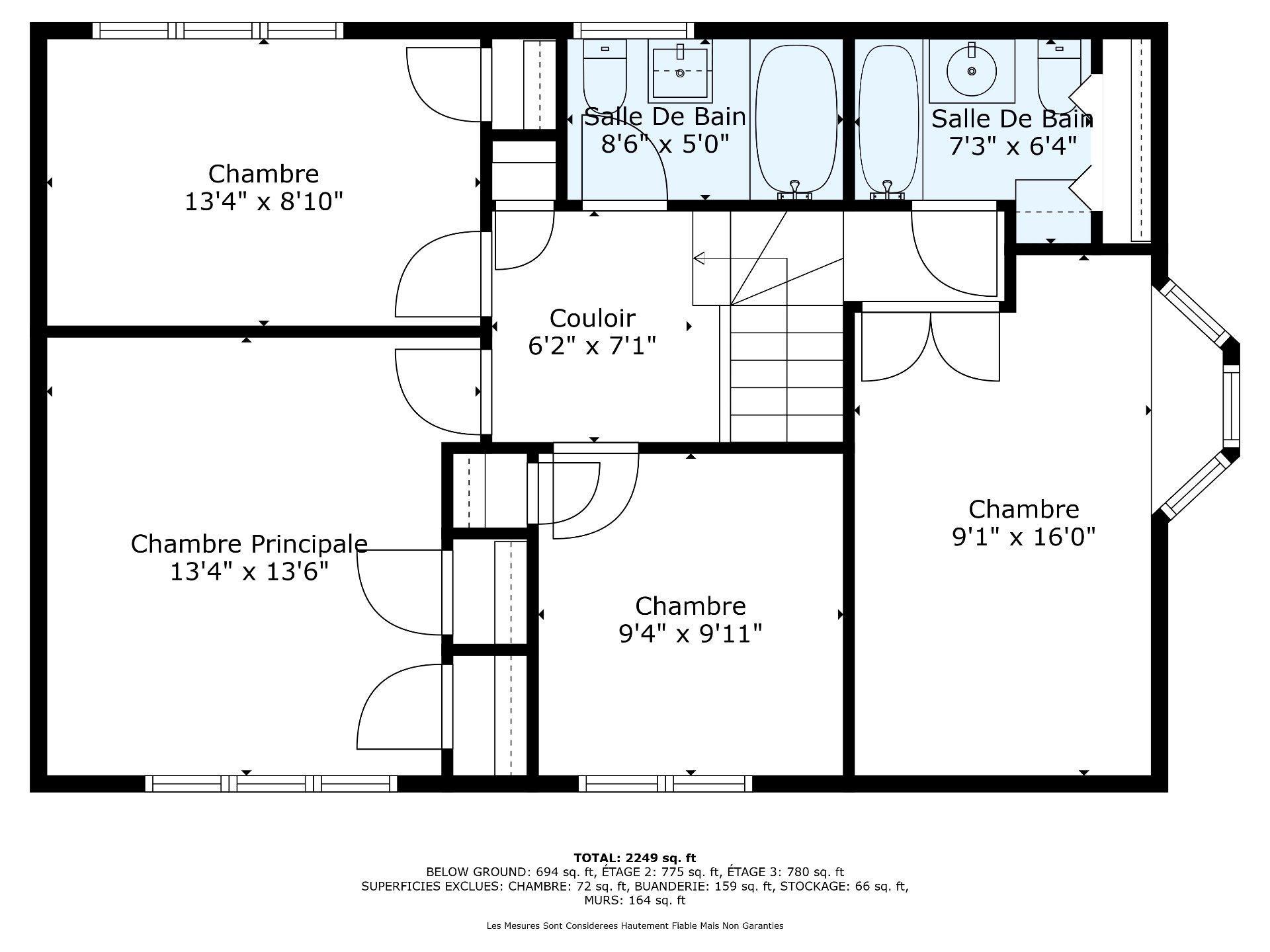
Second Floor -- 8'7" Ceilings
- Primary bedroom with a reading nook in the bay window
- Bathroom located just across the hall, featuring a skylight (a rare feature in this price range)
- Three additional well-sized bedrooms sharing a second bathroom
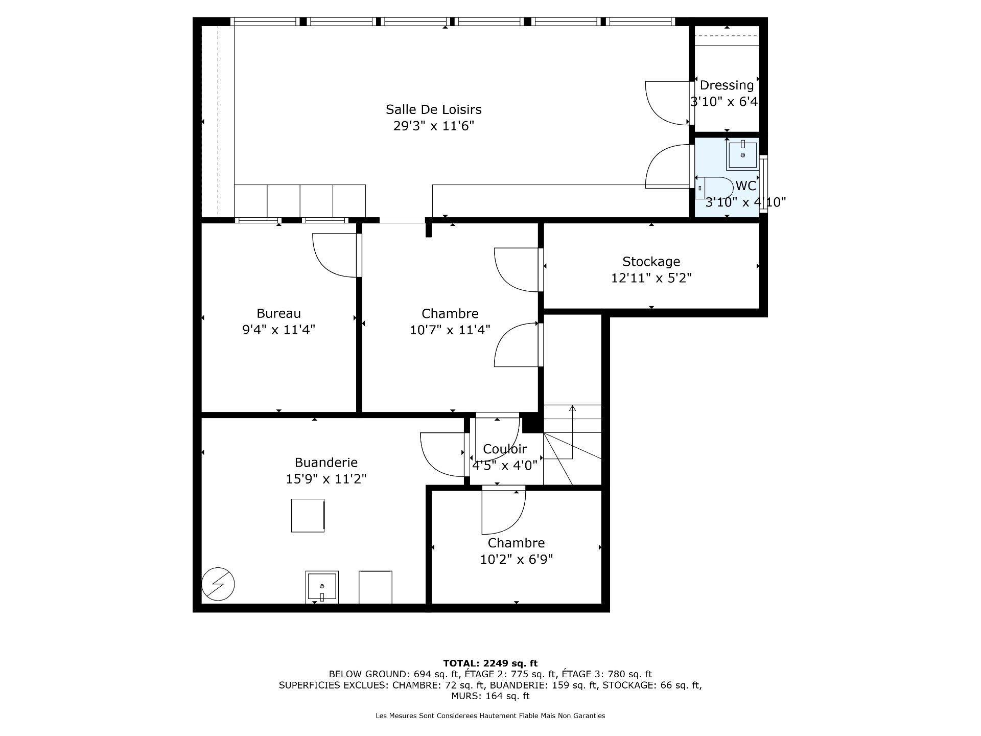
Basement -- 6'11" Ceilings
- Large family room
- Powder room
- Office with built-in storage
- Two large storage areas, plus a mechanical/laundry room with ample storage space
Exterior
- Located on a quiet, tree-lined street
- Large corner lot
- Expansive wooden deck
- Three outdoor parking spaces
**The living area is based on the floor area in the assessment role excluding the basement.
Inclusions: Piano in basement, poles and window dressing.
Exclusions : Dishwasher, stove, refrigerator, washer and dryer, light fixtures in dining room and family room.
Building Features:
- Style: Semi-Detached
- Basement: 6 feet and more, Partially finished
- Bathroom: Ensuite bathroom
- Driveway: Paving stone
- Parking: Driveway
- Proximity: Highway, CEGEP, Daycare centre, Hospital, Metro, Park, Bicycle path, Elementary school, Réseau Express Métropolitain (REM), High school, Public transportation, University
- Roofing: Asphalt shingles
- Siding: Stucco
- Size: 35.0 x 25.0 Feet
- Heating System: Forced air, Convection baseboards
- Heating Energy: Electricity
- Water Supply: Municipality, With water meter
- Sewage System: Municipality
Taxes:
- Municipal Tax: $7,917
- School Tax: $1,228
- Annual Tax Amount: $9,247
Expenses:
- Electric: $3,690
Property Assessemnt:
- Lot Assessment: $1,133,900
- Building Assessment: $348,700
- Total Assessment: $1,482,600
Property Features:
- Bedrooms: 4
- Bathrooms: 2
- Half Bathrooms: 1
- Built in: 1943
- Floor Space (approx): 1809.0 Square Feet
- Lot Depth: 106.0 Feet
- Lot Frontage: 106.0 Feet
- Lot Size: 5676.00 Square Feet
- Zoning: RESI
- No. of Parking Spaces: 3
Rooms:
- Other Ground Level 1.24 m x 1.07 m 4.1 ft x 3.6 ft Flooring: Wood
- Other Ground Level 2.26 m x 1.02 m 7.5 ft x 3.4 ft Flooring: Wood
- Living Ground Level 4.75 m x 3.53 m 15.7 ft x 11.7 ft Flooring: Wood
- Dining Ground Level 3.53 m x 3.30 m 11.7 ft x 10.10 ft Flooring: Wood Note: Door leading to the balcony
- Kitchen Ground Level 3.15 m x 2.82 m 10.4 ft x 9.3 ft Flooring: Slate
- Family Ground Level 6.88 m x 2.84 m 22.7 ft x 9.4 ft Flooring: Slate Note: Patio door leading to the yard
- Primary Bedroom 2nd Level 4.32 m x 2.97 m 14.2 ft x 9.9 ft Flooring: Wood
- Bathroom 2nd Level 2.34 m x 1.50 m 7.8 ft x 4.11 ft Flooring: Ceramic Note: Ensuite
- Bedroom 2nd Level 4.04 m x 2.87 m 13.3 ft x 9.5 ft Flooring: Wood
- Bedroom 2nd Level 4.19 m x 3.53 m 13.9 ft x 11.7 ft Flooring: Wood Note: 2 closets
- Bedroom 2nd Level 3.12 m x 2.74 m 10.3 ft x 9.0 ft Flooring: Wood
- Bathroom 2nd Level 2.29 m x 1.57 m 7.6 ft x 5.2 ft Flooring: Ceramic
- Playroom Basement Level 8.84 m x 3.35 m 29.0 ft x 11.0 ft Flooring: Carpet
- Playroom Basement Level 3.28 m x 2.82 m 10.9 ft x 9.3 ft Flooring: Carpet
- Office Basement Level 3.33 m x 2.95 m 10.11 ft x 9.8 ft Flooring: Laminate floor
- Powder room Basement Level 2.74 m x 1.12 m 9.0 ft x 3.8 ft Flooring: Ceramic
- Storage Basement Level 2.72 m x 2.08 m 8.11 ft x 6.10 ft Flooring: Other - Vinyl
- Storage Basement Level 4.27 m x 1.09 m 14.0 ft x 3.7 ft Flooring: Concrete
- Laundry Basement Level 4.45 m x 3.25 m 14.7 ft x 10.8 ft Flooring: Concrete Note: Machine room
Convert Measurement to:
Data provided by: Centris - 600 Ch Du Golf, Ile -Des -Soeurs, Quebec H3E 1A8
All information displayed is believed to be accurate but is not guaranteed and should be independently verified. No warranties or representations are made of any kind. Copyright© 2021 All Rights Reserved.
Market Price Trends
Location of 84 Av. Dobie, Mont-Royal, QC, H3P 1S2
Demographic Information of 84 Av. Dobie, Mont-Royal, QC, H3P 1S2
Life Stage
Midlife FamiliesEmployment Type
White CollarAverage Household Income
$242,803.55Average Number of Children
1.79Household Population
Household Structure
Age of Population
Education
Education Level
No certificate/diploma/degree
8.2 %High school certificate or equivalent
12.86 %Apprenticeship trade certificate/diploma
3.58 %College/non-university certificate
14.51 %University certificate (below bachelor)
8.06 %University Degree
52.78 %Commuter
Travel To Work
By Car
64.72 %By Public Transit
18.53 %By Walking
8.13 %By Bicycle
5.16 %By Other Methods
3.46 %Cultural Diversity
Knowledge of Official Language
Mother Tongue
Building Information
Building Type
Apartments (Low and High Rise)
42.16 %Houses
57.84 %


































































