2401 4 Avenue NW, Calgary, AB, T2N 0P3
$2,199,000MLS® # A2264373
House For Sale In West Hillhurst, Calgary, Alberta
6
Bedrooms
5
Baths
-
4340.00 Square Feet
Lot Size
Property Information:
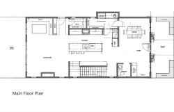
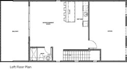
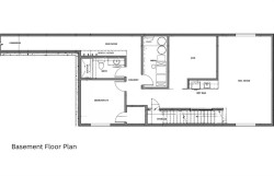
Welcome to luxury living in this stunning detached home offering over 3,000 sqft of thoughtfully designed space. From top to bottom, this residence blends elegance, functionality, and unique features that set it apart.The fully developed basement is an entertainer’s dream, complete with a spacious rec room, wet bar, bedroom, full bathroom, walk-in closet, and a private gym. A one-of-a-kind underground tunnel seamlessly connects the basement to the triple car garage, keeping you sheltered from the elements year-round.On the main floor, a grand foyer welcomes you into an open-concept layout featuring a formal dining room, hidden butler’s pantry, mudroom with a walk-in closet, and a cozy living room with a gas fireplace. A unique booth-style seating area adds charm, while the concrete patio extends the living space outdoors.The second floor is home to a spacious primary suite with a large walk-in closet and spa-like ensuite. Two additional bedrooms, each with their own ensuite, provide comfort and privacy, while the convenient upper-floor laundry completes the level.The third-floor loft elevates the home further, offering a versatile office space, wet bar with an island, entertainment area, bathroom, and a private balcony with beautiful views.A truly exceptional home in an unbeatable location—don’t miss your chance to own this one-of-a-kind masterpiece!
Inclusions: None
Building Features:
- Garage: Yes
- Total Finished Area: 3354.80
Property Features:
- Bedrooms: 4+2
- Bathrooms: 4+1
- Architectural Style: 3 Storey
- Built in: 2025
- Construction Materials: Wood Frame
- Cooling: None
- Exterior Features: Lighting, Other
- Fireplace Features: Gas
- Floor Space (approx): 3354.80 Square Feet
- Flooring: Carpet, Hardwood, Tile
- Foundation Details: Poured Concrete
- Heating: Forced Air
- Interior Features: Built-in Features, Double Vanity, High Ceilings, No Animal Home, No Smoking Home, Open Floorplan, Pantry
- Levels: Three Or More
- Lot Size: 4340.00 Square Feet
- Parking Features:
- Roof: Asphalt Shingle
- Zoning: R-CG
- No. of Parking Spaces: 3
Courtesy of: eXp Realty
Data provided by: Calgary Real Estate Board 300 Manning Rd. NE, Calgary, Alberta T2E 8K4
All information displayed is believed to be accurate but is not guaranteed and should be independently verified. No warranties or representations are made of any kind. Copyright© 2021 All Rights Reserved
Additional Photos





