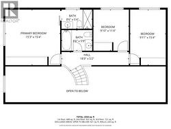
94 COHO AVENUE, Kitimat, British Columbia, V8C 2K6
$799,990MLS® # R3072559
This listing content provided by REALTOR.ca has been licensed by REALTOR® members of The Canadian Real Estate Association.
Additional Photos
94 COHO AVENUE, Kitimat, British Columbia, V8C 2K6
$799,990MLS® # R3072559
This listing content provided by REALTOR.ca has been licensed by REALTOR® members of The Canadian Real Estate Association.
Additional Photos






































