455 BURNSIDE STREET, Saugeen Shores, Ontario, N0H 2C3
$749,900MLS® # X12071873
House For Sale In Saugeen Shores, Ontario
3
Bedrooms
1
Bath
-
47.5 x 108.1 FT
Lot Size
Property Information:
Prime location at 455 Burnside Street in Port Elgin. Welcome to your new home; brand new brick bungalow 1303 sqft offering a perfect blend of comfort & convenience. Featuring 3 cozy bedrooms with ample closet space; perfect for family living or guests. Welcoming living room with large windows allowing natural light to flood the space. Functional kitchen with 6ft island and pantry. Full unspoiled basement can be finished for an additional $40000.00 including HST doubling your square footage. Exterior finishes include a double concrete drive and sodded yard. Central air and gas forced air furnace make heating and cooling a breeze. HST is included in the list price provided the Buyer qualifies for the rebate and assigns it to the Builder on closing. Prices subject to change without notice. (id:27)
Building Features:
- Style: Detached
- Building Type: House
- Architectural Style: Bungalow
- Basement Development: Unfinished
- Basement Type: Full
- Construction Style - Attachment: Detached
- Exterior Finish: Brick
- Floor Space: 1100 - 1500 sqft
- Foundation Type: Poured Concrete
- Heating Type: Forced air
- Heating Fuel: Natural gas
- Cooling Type: Central air conditioning, Air exchanger
- Appliances: Water meter
Property Features:
- OwnershipType: Freehold
- Property Type: Single Family
- Bedrooms: 3
- Bathrooms: 1
- Amenities Nearby:
- Features: Flat site
- Floor Space (approx): 1100 - 1500 Square Feet
- Irregular: Yes
- Lot Depth: 108.1 Feet
- Lot Frontage: 47.5 Feet
- Lot Size: 47.5 x 108.1 FT
- Utility Type: Cable - Available, Sewer - Installed, Hydro - Installed
- Zoning: R2-4
- Sewer: Sanitary sewer
- Parking Type: Attached garage, Garage
- No. of Parking Spaces: 3
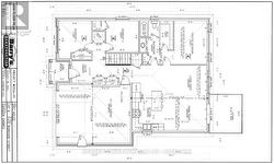
Rooms:
- 2nd Bedroom Main Level 3.05 m x 3.35 m 10.01 ft x 10.99 ft
- 3rd Bedroom Main Level 3.05 m x 2.95 m 10.01 ft x 9.68 ft
- Primary Bedroom Main Level 4.05 m x 3.05 m 13.29 ft x 10.01 ft
- Living Main Level 4.88 m x 3.33 m 16.01 ft x 10.93 ft
- Dining Main Level 3.99 m x 2.74 m 13.09 ft x 8.99 ft
- Kitchen Main Level 3.02 m x 4.42 m 9.91 ft x 14.50 ft
- Foyer Main Level 1.10 m x 2.10 m 3.61 ft x 6.89 ft
- Laundry Main Level 0.91 m x 0.91 m 2.99 ft x 2.99 ft
Courtesy of: RE/MAX Land Exchange Ltd.
This listing content provided by REALTOR.ca has been licensed by REALTOR® members of The Canadian Real Estate Association.
This listing content provided by REALTOR.ca has been licensed by REALTOR® members of The Canadian Real Estate Association.
Additional Photos

