461 NORTHPORT DRIVE, Saugeen Shores, Ontario, N0H 2C8
$999,900MLS® # X11822708
House For Sale In Saugeen Shores, Ontario
4
Bedrooms
3
Baths
-
48.7 x 132.2 FT
Lot Size
Property Information:
Drywall and paint are complete and this bungalow could be your new home at 461 Northport Drive in Port Elgin in just 60 days. One of the Builder's most popular plans; could it be the 6'8 x 6'8 walk in pantry, large finished basement, covered front porch, vaulted ceiling in the LR / DR & Kitchen or covered back deck that make it a best seller. The main floor boasts 1605 sqft of living space and the basement is accessible from the 2 car garage that measures 25'8 x 21'10. Standard features include Quartz kitchen counter tops, gas fireplace, central air, main floor laundry with cabinets for added storage, automatic garage door openers, double concrete drive, sodded yard and more. HST is included in the list price provided the Buyer qualifies for the rebate and assigns it to the Builder on closing. (id:27)
Building Features:
- Style: Detached
- Building Type: House
- Amenities:
- Architectural Style: Bungalow
- Basement Type: N/A, N/A
- Construction Style - Attachment: Detached
- Exterior Finish: Stone, Vinyl siding
- Fireplace: Yes
- Floor Space: 1500 - 2000 sqft
- Flooring Type: Hardwood, Tile
- Foundation Type: Poured Concrete
- Heating Type: Forced air
- Heating Fuel: Natural gas
- Cooling Type: Central air conditioning, Air exchanger
- Appliances: Water meter, Garage door opener
Property Features:
- OwnershipType: Freehold
- Property Type: Single Family
- Bedrooms: 2+2
- Bathrooms: 3
- Access Type: Year-round access
- Amenities Nearby: Schools
- Features: Flat site, Sump Pump
- Floor Space (approx): 1500 - 2000 Square Feet
- Irregular: Yes
- Lot Depth: 132.2 Feet
- Lot Frontage: 48.7 Feet
- Lot Size: 48.7 x 132.2 FT
- Structure Type: Deck, Porch
- Utility Type: Wireless - Available, Hydro - Installed, Sewer - Installed, Cable - Available
- Zoning: R2-11
- Sewer: Sanitary sewer
- Parking Type: Attached garage, Garage
- No. of Parking Spaces: 4
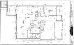
Rooms:
- 4th Bedroom Basement Level 3.38 m x 4.01 m 11.09 ft x 13.16 ft
- Utility Basement Level 4.72 m x 4.93 m 15.49 ft x 16.17 ft
- Family Basement Level 2.95 m x 3.10 m 9.68 ft x 10.17 ft
- Family Basement Level 7.67 m x 5.00 m 25.16 ft x 16.40 ft
- 3rd Bedroom Basement Level 3.76 m x 4.01 m 12.34 ft x 13.16 ft
- Foyer Main Level 1.93 m x 2.57 m 6.33 ft x 8.43 ft
- 2nd Bedroom Main Level 3.33 m x 3.63 m 10.93 ft x 11.91 ft
- Laundry Main Level 2.39 m x 2.92 m 7.84 ft x 9.58 ft
- Primary Bedroom Main Level 3.63 m x 5.00 m 11.91 ft x 16.40 ft
- Great Room Main Level 4.19 m x 5.13 m 13.75 ft x 16.83 ft
- Dining Main Level 3.81 m x 3.94 m 12.50 ft x 12.93 ft
- Kitchen Main Level 3.81 m x 3.81 m 12.50 ft x 12.50 ft
Courtesy of: RE/MAX Land Exchange Ltd.
This listing content provided by REALTOR.ca has been licensed by REALTOR® members of The Canadian Real Estate Association.
This listing content provided by REALTOR.ca has been licensed by REALTOR® members of The Canadian Real Estate Association.
Additional Photos

