656 DEVONSHIRE ROAD, Saugeen Shores, Ontario, N0H 2C3
$899,900MLS® # X12110957
House For Sale In Saugeen Shores, Ontario
4
Bedrooms
3
Baths
-
56 x 182 FT
Lot Size
Property Information:
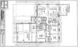
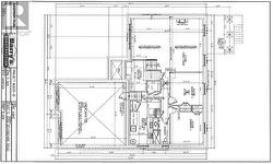
On a lot measuring 56ft x 182 ft, this 1406 sqft, 3 + 2 bedroom, 3 bath home is under construction. The location is 656 Devonshire Road in Port Elgin just a short walk to the rail trail, Food Basics, and the new Saugeen Shores Aquatic Center. The main floor is open concept with 9ft ceilings, vinyl plank and ceramic flooring, walkout to a 10 x 14 deck, Quartz kitchen counter tops and spacious entrance foyer. The basement will be finished and include a family room with gas fireplace, 2 bedrooms, 3pc bath, laundry / utility room with access to the 2 car garage measuring 22'8 x 24'. The yard will be completely sodded and a concrete drive will be in place. HST is included in the list price provided the Buyer qualifies for the rebate and assigns it to the Builder on closing. Prices subject to change without notice. (id:27)
Building Features:
- Style: Detached
- Building Type: House
- Amenities:
- Architectural Style: Raised bungalow
- Basement Development: Finished
- Basement Type: N/A, N/A
- Construction Style - Attachment: Detached
- Exterior Finish: Brick, Vinyl siding
- Fireplace: Yes
- Floor Space: 1100 - 1500 sqft
- Flooring Type: Tile, Hardwood
- Foundation Type: Poured Concrete
- Heating Type: Forced air
- Heating Fuel: Natural gas
- Cooling Type: Central air conditioning, Air exchanger
- Appliances: Garage door opener remote, Garage door opener
Property Features:
- OwnershipType: Freehold
- Property Type: Single Family
- Bedrooms: 3+1
- Bathrooms: 3
- Community Features: Community Centre
- Features: Flat site, Sump Pump
- Floor Space (approx): 1100 - 1500 Square Feet
- Irregular: Yes
- Lot Depth: 182.0 Feet
- Lot Frontage: 56.0 Feet
- Lot Size: 56 x 182 FT
- Utility Type: Hydro - Installed, Sewer - Installed, Cable - Available
- Zoning: R1
- Sewer: Sanitary sewer
- Parking Type: Attached garage, Garage
- No. of Parking Spaces: 6
Rooms:
- Laundry Basement Level 3.61 m x 2.49 m 11.84 ft x 8.17 ft
- Family Basement Level 7.90 m x 4.57 m 25.92 ft x 14.99 ft
- 4th Bedroom Basement Level 3.56 m x 3.58 m 11.68 ft x 11.75 ft
- 5th Bedroom Basement Level 3.53 m x 3.58 m 11.58 ft x 11.75 ft
- Foyer Main Level 3.35 m x 1.57 m 10.99 ft x 5.15 ft
- Living Main Level 4.37 m x 7.78 m 14.34 ft x 25.52 ft
- Dining Main Level 3.89 m x 3.05 m 12.76 ft x 10.01 ft
- Kitchen Main Level 3.89 m x 3.05 m 12.76 ft x 10.01 ft
- Primary Bedroom Main Level 4.42 m x 3.38 m 14.50 ft x 11.09 ft
- 2nd Bedroom Main Level 3.15 m x 3.07 m 10.33 ft x 10.07 ft
- 3rd Bedroom Main Level 3.15 m x 3.07 m 10.33 ft x 10.07 ft
Courtesy of: RE/MAX Land Exchange Ltd.
This listing content provided by REALTOR.ca has been licensed by REALTOR® members of The Canadian Real Estate Association.
This listing content provided by REALTOR.ca has been licensed by REALTOR® members of The Canadian Real Estate Association.
Additional Photos

