Maison À vendre à Airdrie, Alberta
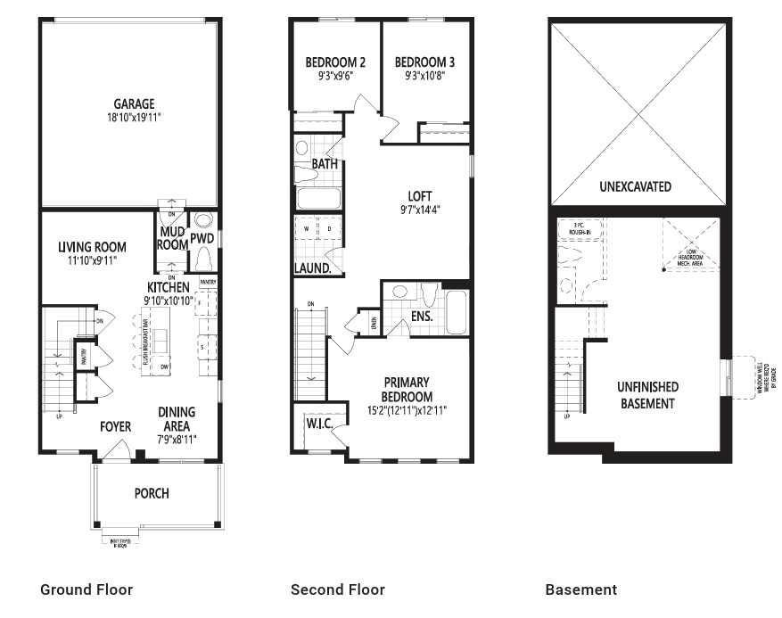
483 990 $ ÉvaluationExpressMC: Non disponible3+0 Chambres
3 Salles de bain
-
Détails
-
Carte
-
Données démographiques
-
Vue de la rue
-
Itinéraire
-
Publicité
MULTIMEDIA

