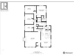
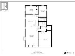
9308 112 AVENUE, Fort St. John, British Columbia, V1J 2V9
429 000 $No. MLS® R3059108
Le contenu de cette inscription est fourni par REALTOR.ca et a été autorisé par les membres de l'Association canadienne de l'immeuble.
Photos supplémentaires






































