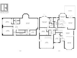
1125 Keyes Road, Kelowna, British Columbia, V1X 7B2
914 000 $No. MLS® 10361015
Le contenu de cette inscription est fourni par REALTOR.ca et a été autorisé par les membres de l'Association canadienne de l'immeuble.
Photos supplémentaires






























