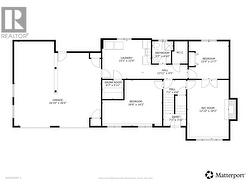
1197 Bentien Road, Kelowna, British Columbia, V1P 1C7
868 800 $No. MLS® 10364802
Le contenu de cette inscription est fourni par REALTOR.ca et a été autorisé par les membres de l'Association canadienne de l'immeuble.
Photos supplémentaires


















































