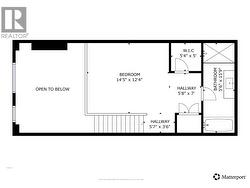
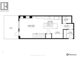
1495 Graham Street Unit# 124, Kelowna, British Columbia, V1Y 3B2
625 000 $No. MLS® 10369114
Le contenu de cette inscription est fourni par REALTOR.ca et a été autorisé par les membres de l'Association canadienne de l'immeuble.
Photos supplémentaires


















































