2224 Linea Crescent, Lumby, British Columbia, V0E 2G0
775 000 $No. MLS® 10350342
Le contenu de cette inscription est fourni par REALTOR.ca et a été autorisé par les membres de l'Association canadienne de l'immeuble.
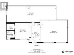
Photos supplémentaires








































































