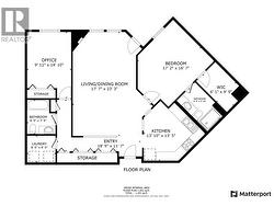
3300 Centennial Drive Unit# 102, Vernon, British Columbia, V1T 9M5
415 000 $No. MLS® 10370096
Le contenu de cette inscription est fourni par REALTOR.ca et a été autorisé par les membres de l'Association canadienne de l'immeuble.
Photos supplémentaires












































