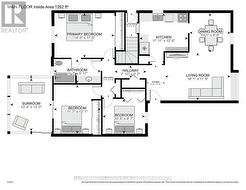
1311 VISTA DRIVE, Brockville, Ontario, K6V 6G2
429 000 $No. MLS® X12460488
Le contenu de cette inscription est fourni par REALTOR.ca et a été autorisé par les membres de l'Association canadienne de l'immeuble.
Photos supplémentaires



































