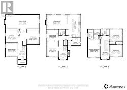
2137 CLEAVER AVENUE, Burlington, Ontario, L7M 3R1
1 179 900 $No. MLS® W12639608
Le contenu de cette inscription est fourni par REALTOR.ca et a été autorisé par les membres de l'Association canadienne de l'immeuble.
Photos supplémentaires













































