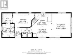
4 TAMARACK - 4449 MILBUROUGH LINE, Burlington, Ontario, L7P 0C5
369 900 $No. MLS® W12482407
Le contenu de cette inscription est fourni par REALTOR.ca et a été autorisé par les membres de l'Association canadienne de l'immeuble.
Photos supplémentaires






















