Sales Representative
Royal LePage Signature Realty
, Courtage*
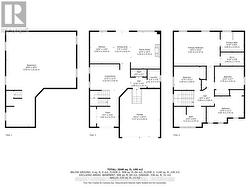
9 WILSON STREET, Collingwood, Ontario, L9Y 0Y9
1 049 000 $No. MLS® S12346681
Photos supplémentaires































