14137 LITTLE LAKE ROAD, Cramahe (Colborne), Ontario, K0K 1S0
1 120 000 $No. MLS® X12360109
Maison À vendre à Cramahe (Colborne), Ontario
3
Chambres
2
Salles de bain
-
213 x 506 FT
Dimension du terrain
Exceptional New Build Opportunity 1805 Sq Ft Bungalow. Welcome to a rare chance to own a brand new, beautifully crafted bungalow by trusted local builder, Fidelity Homes. This 1805 sq ft home offers an ideal blend of comfort, style, and flexibility, move forward with the existing plan or fully customize the layout and finishes to reflect your personal vision. The proposed design features 3 spacious bedrooms and 2 bathrooms, with an airy open-concept kitchen, dining, and great room complete with a cozy fireplace perfect for everyday living or hosting guests. High-quality finishes include luxury vinyl plank flooring, designer light fixtures, quartz countertops, and custom cabinetry throughout the kitchen and bathrooms. Thoughtfully designed for functionality and ease, this home includes main floor laundry, a spacious covered front porch, and a generous back deck for outdoor living. Covered by a 7-year Tarion warranty and built with integrity by Fidelity Homes, this property is a true standout. Design as planned or customize every detail, your perfect home starts here. (id:7525)
Particularités du bâtiment :
- Style: Maison détachée
- Type de bâtiment: Unifamiliale
- Air climatisé: Oui
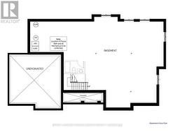
- État du sous-sol: Non aménagé
- Fondation: Béton coulé
- Foyer: Oui
- Protection incendie: Détecteurs de fumée
- Revêtement extérieur: Bardage en vinyle, Pierre
- Services:
- Stationnement: Oui
- Surface utile: 1500 - 2000 sqft
- Type d'architecture: Maison de plain-pied
- Type de construction: Isolée
- Type de plancher: Tapis vinylique
- Type de sous-sol: Sous-sol complet
- Type de chauffage: Air pulsé
- Combustible de chauffage: Propane
- Type de climatisation: Climatisation centrale
- Électroménagers: Télécommande(s) d'ouvre-porte de garage, Ouvre-porte de garage
Caractéristiques :
- Type de possession: Tenure franche
- Type de propriété: Unifamiliale
- Caractéristiques de la communauté: Autobus scolaire
- Chambres : 3
- Dimensions du terrain : 213 x 506 FT
- Irregular: Oui
- Largeur du terrain en façade : 213.0 Pieds
- Profondeur du terrain : 506.0 Pieds
- Salle(s) de bains : 2
- Services à proximité: Écoles
- Superficie habitable (approx): 1500 - 2000 Pieds carrés
- Type de services publiques: Électricité - Installé
- Type d'eau de ruissellement:
- Service d'égout: Fosse septique
- Type de stationnement: Garage attenant, Garage
- Nbre d'espaces de stationnement: 4
Détails des pièces :
- Salle à dîner Niveau rez-de-chaussée 2.97 m x 4.22 m 9.74 p x 13.85 p
- Cuisine Niveau rez-de-chaussée 3.33 m x 4.83 m 10.93 p x 15.85 p
- Salle familiale Niveau rez-de-chaussée 5.08 m x 4.22 m 16.67 p x 13.85 p
- Chambre principale Niveau rez-de-chaussée 4.27 m x 4.22 m 14.01 p x 13.85 p
- 2e chambre Niveau rez-de-chaussée 3.35 m x 3.43 m 10.99 p x 11.25 p
- 3e chambre Niveau rez-de-chaussée 3.35 m x 3.86 m 10.99 p x 12.66 p
Gracieuseté de : Royal LePage ProAlliance Realty
Le contenu des inscriptions fournies par REALTOR.ca a été autorisé par les membres de l'Association canadienne de l'immeuble.
Photos supplémentaires





