Sales Representative
Royal LePage North Heritage Realty
, Courtage*
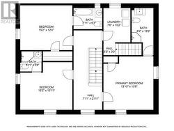
29 Phipps Street, Gore Bay, Manitoulin Island, Ontario, P0P 1H0
498 000 $No. MLS® 2121105
Photos supplémentaires












































