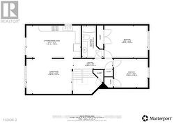
26 BEVERLY STREET, Kawartha Lakes (Lindsay), Ontario, K9V 4Y7
679 900 $No. MLS® X12590494
Le contenu de cette inscription est fourni par REALTOR.ca et a été autorisé par les membres de l'Association canadienne de l'immeuble.
Photos supplémentaires































