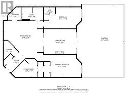
407 - 250 PALL MALL STREET, London East (East F), Ontario, N6A 6K3
455 000 $No. MLS® X12377258
Le contenu de cette inscription est fourni par REALTOR.ca et a été autorisé par les membres de l'Association canadienne de l'immeuble.
Photos supplémentaires


































