Sales Representative
Royal LePage Real Estate Services Phinney Real Estate
, Courtage*
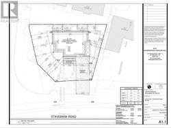
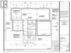
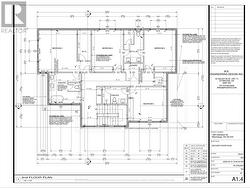
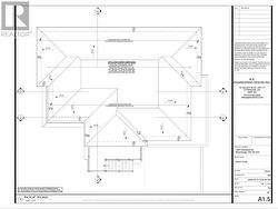
1585 STAVEBANK ROAD, Mississauga, Ontario, L5G 2V6
1 499 000 $No. MLS® W12610788
Photos supplémentaires













