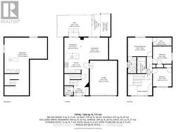
20 CARLETON TRAIL, New Tecumseth, Ontario, L0G 1A0
844 000 $No. MLS® N12640880
-
Visites libres
- dim 21 déc 2025 13h00 - 15h00
Le contenu de cette inscription est fourni par REALTOR.ca et a été autorisé par les membres de l'Association canadienne de l'immeuble.
Photos supplémentaires














































