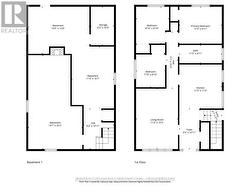
6183 JOHNSON DRIVE, Niagara Falls (Church's Lane), Ontario, L2J 3J6
449 900 $No. MLS® X12644678
Le contenu de cette inscription est fourni par REALTOR.ca et a été autorisé par les membres de l'Association canadienne de l'immeuble.
Photos supplémentaires


































