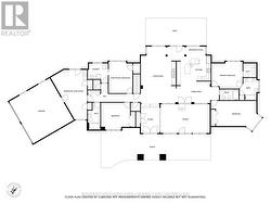
326 BLUEBERRY MARSH ROAD, Oro-Medonte, Ontario, L4R 4K3
1 699 900 $No. MLS® S12437711
Le contenu de cette inscription est fourni par REALTOR.ca et a été autorisé par les membres de l'Association canadienne de l'immeuble.
Photos supplémentaires
















































