Sales Representative
Royal LePage Team Realty
, Courtage*
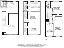
1308 SUMMERVILLE AVENUE, Ottawa, Ontario, K1Z 8G8
499 900 $No. MLS® X12510508
Photos supplémentaires















































