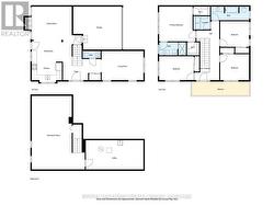
601 ROSEHILL AVENUE, Ottawa, Ontario, K2S 0K3
849 900 $No. MLS® X12598068
Le contenu de cette inscription est fourni par REALTOR.ca et a été autorisé par les membres de l'Association canadienne de l'immeuble.
Photos supplémentaires















































