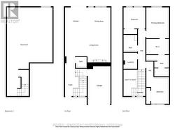
102 LAMETTI DRIVE, Pelham (Fonthill), Ontario, L3B 5N5
789 000 $No. MLS® X12564240
Le contenu de cette inscription est fourni par REALTOR.ca et a été autorisé par les membres de l'Association canadienne de l'immeuble.
Photos supplémentaires














































