411 IVINGS DRIVE, Saugeen Shores, Ontario, N0H 2C1
709 900 $No. MLS® X12232570
Maison À vendre à Saugeen Shores, Ontario
709 900 $
4
Chambres
3
Salles de bain
-
30.6 x 108 FT
Dimension du terrain
Remarques :
(id:27)
Particularités du bâtiment :
- Style: Maison en rangée
- Type de bâtiment: Maison en rangée
- Air climatisé: Oui
- État du sous-sol: Partiellement aménagé
- Fondation: Béton coulé
- Foyer: Oui
- Protection incendie: Détecteurs de fumée
- Revêtement extérieur: Pierre, Bardage en vinyle
- Services:
- Stationnement: Oui
- Surface utile: 1100 - 1500 sqft
- Type d'architecture: Maison de plain-pied
- Type de construction: En rangée
- Type de plancher: Plancher de bois franc, Béton, Carrelage
- Type de sous-sol: s.o.
- Type de chauffage: Air pulsé
- Combustible de chauffage: Gaz naturel
- Type de climatisation: Climatisation centrale, Échangeur d'air
- Électroménagers: Télécommande(s) d'ouvre-porte de garage, Compteur d'eau
Caractéristiques :
- Type de possession: Tenure franche
- Type de propriété: Unifamiliale
- Caractéristiques: Terrain plat
- Chambres : 2+2
- Dimensions du terrain : 30.6 x 108 FT
- Irregular: Oui
- Largeur du terrain en façade : 30.6 Pieds
- Profondeur du terrain : 108.0 Pieds
- Salle(s) de bains : 3
- Services à proximité: Écoles, Parc
- Superficie habitable (approx): 1100 - 1500 Pieds carrés
- Type de services publiques: Électricité - Installé, Service du câble - Disponible, Service d'égout - Installé
- Type de structure: Terrasse, Porche
- Service d'égout: Égout sanitaire
- Type de stationnement: Garage attenant, Garage
- Nbre d'espaces de stationnement: 2
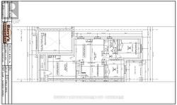
Détails des pièces :
- Pièce utilitaire Sous-sol 4.90 m x 4.32 m 16.08 p x 14.17 p
- 3e chambre Sous-sol 3.51 m x 3.53 m 11.52 p x 11.58 p
- 4e chambre Sous-sol 3.56 m x 3.71 m 11.68 p x 12.17 p
- Salle familiale Sous-sol 7.39 m x 5.16 m 24.25 p x 16.93 p
- Hall d'entrée Niveau rez-de-chaussée 1.52 m x 3.12 m 4.99 p x 10.24 p
- 2e chambre Niveau rez-de-chaussée 3.05 m x 3.05 m 10.01 p x 10.01 p
- Vestibule Niveau rez-de-chaussée 2.13 m x 3.12 m 6.99 p x 10.24 p
- Salle à dîner Niveau rez-de-chaussée 4.75 m x 3.63 m 15.58 p x 11.91 p
- Cuisine Niveau rez-de-chaussée 3.63 m x 3.84 m 11.91 p x 12.60 p
- Salon Niveau rez-de-chaussée 3.73 m x 4.27 m 12.24 p x 14.01 p
- Chambre principale Niveau rez-de-chaussée 3.76 m x 4.27 m 12.34 p x 14.01 p
Gracieuseté de : RE/MAX Land Exchange Ltd.
Le contenu des inscriptions fournies par REALTOR.ca a été autorisé par les membres de l'Association canadienne de l'immeuble.
Le contenu de cette inscription est fourni par REALTOR.ca et a été autorisé par les membres de l'Association canadienne de l'immeuble.
Photos supplémentaires


