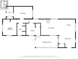
51 - 5263 ELLIOTT SIDE ROAD, Tay, Ontario, L4R 4K3
289 900 $No. MLS® S12347695
Le contenu de cette inscription est fourni par REALTOR.ca et a été autorisé par les membres de l'Association canadienne de l'immeuble.
Photos supplémentaires



















