Sales Representative
Royal LePage Real Estate Associates
, Courtage*
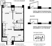
1008 - 60 CENTRAL PARK ROADWAY, Toronto, Ontario, M9A 3K1
2 325.00 $ /moisNo. MLS® W12599342
Photos supplémentaires





















