Maison À vendre à Garden River Rm No. 490, Saskatchewan
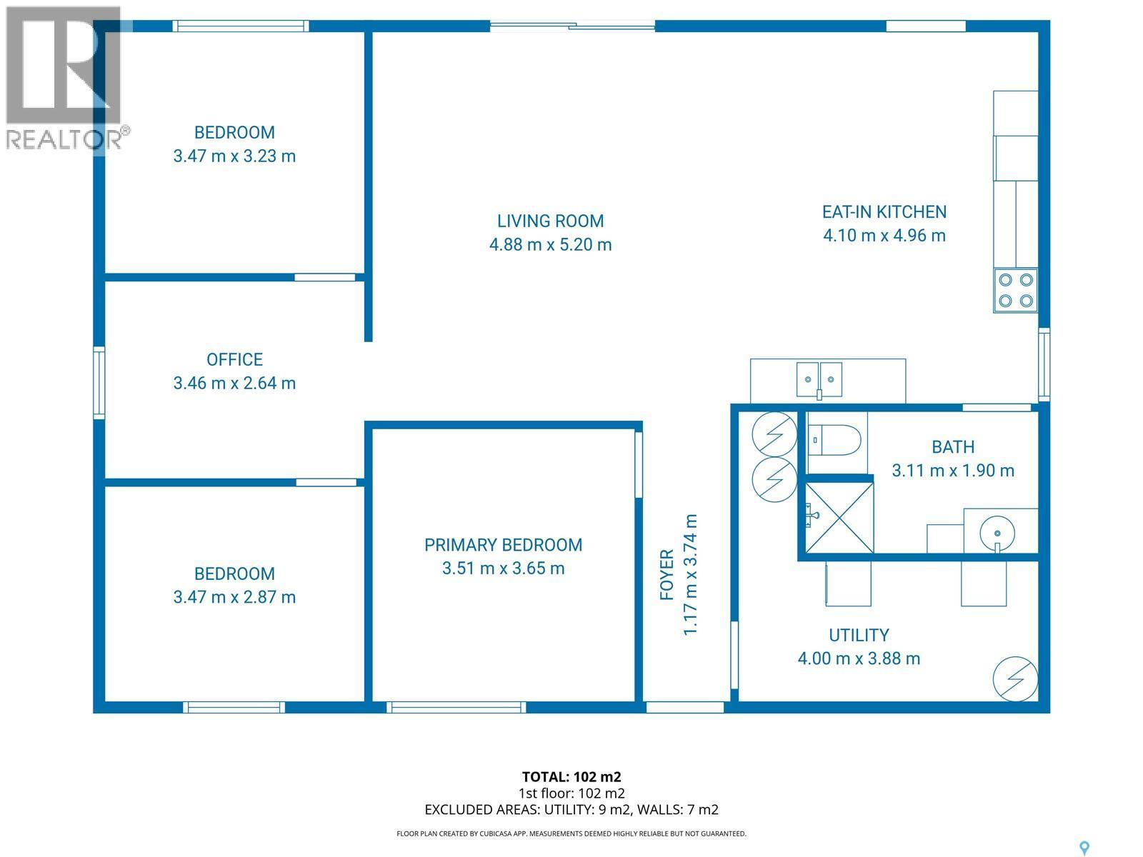
199 900 $ ÉvaluationExpressMC: Non disponible3 Chambres
1 Salle de bain
-
Détails
-
Carte
-
Données démographiques
-
Vue de la rue
-
Itinéraire
-
Publicité















