48 Whitewater PLACE, Yorkton, Saskatchewan, S3N 0X1
568 900 $No. MLS® SK009957
Maison À vendre à Yorkton, Saskatchewan
568 900 $
7
Chambres
4
Salles de bain
-
8084.00 Pieds carrés
Dimension du terrain
Remarques :
(id:27)
Particularités du bâtiment :
- Style: Maison détachée
- Type de bâtiment: Unifamiliale
- Air climatisé: Oui
- État du sous-sol: Aménagé
- Stationnement: Oui
- Surface utile: 2131 sqft
- Type d'architecture: Maison de plain-pied
- Type de sous-sol: Sous-sol complet
- Type de chauffage: Air pulsé
- Combustible de chauffage: Électrique, Gaz naturel
- Type de climatisation: Climatisation centrale, Échangeur d'air, Climatiseur de fenêtre
- Électroménagers: Machine à laver, Réfrigérateur, Lave-vaisselle, Sécheuse, Télécommande(s) d'ouvre-porte de garage, Hotte, , Remise, Cuisinière
Caractéristiques :
- Type de possession: Tenure franche
- Type de propriété: Unifamiliale
- Bâti en: 2010
- Caractéristiques: Boisé, Coin de rue, Pompe de vidange
- Caractéristiques du paysagement: Pelouse, Jardin
- Chambres : 7
- Clôture: Clôture
- Dimensions du terrain : 8084.00 Pieds carrés
- Salle(s) de bains : 4
- Superficie habitable (approx): 2131 Pieds carrés
- Type de structure: Terrasse
- Type de stationnement: Garage attenant, VR, Places de stationnement
- Nbre d'espaces de stationnement: 5
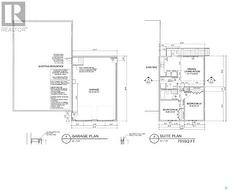
Détails des pièces :
- Autre 2e niveau 4.57 m x 3.94 m 15.00 p x 12.92 p
- Salle de bains 2e niveau 2.74 m x 1.52 m 9.00 p x 5.00 p
- Cuisine 2e niveau 3.05 m x 2.90 m 10.00 p x 9.50 p
- Chambre 2e niveau 3.05 m x 2.95 m 10.00 p x 9.67 p
- Chambre 2e niveau 4.37 m x 2.87 m 14.33 p x 9.42 p
- Autre 2e niveau 2.74 m x 1.83 m 9.00 p x 6.00 p
- Autre Sous-sol 3.00 m x 3.86 m 9.83 p x 12.67 p
- Autre Sous-sol 3.66 m x 9.14 m 12.00 p x 30.00 p
- Autre Sous-sol 3.07 m x 3.38 m 10.08 p x 11.08 p
- Salle de bains Sous-sol 3.35 m x 2.26 m 11.00 p x 7.42 p
- Chambre Sous-sol 3.66 m x 3.84 m 12.00 p x 12.58 p
- Chambre Sous-sol 3.40 m x 4.11 m 11.17 p x 13.50 p
- Cuisine Niveau rez-de-chaussée 4.47 m x 4.57 m 14.67 p x 15.00 p
- Salon Niveau rez-de-chaussée 4.47 m x 4.57 m 14.67 p x 15.00 p
- Autre Niveau rez-de-chaussée 2.79 m x 4.17 m 9.17 p x 13.67 p
- Chambre principale Niveau rez-de-chaussée 3.66 m x 3.66 m 12.00 p x 12.00 p
- Chambre Niveau rez-de-chaussée 3.05 m x 3.05 m 10.00 p x 10.00 p
- Chambre Niveau rez-de-chaussée 3.05 m x 3.05 m 10.00 p x 10.00 p
- Salle de bains Niveau rez-de-chaussée 2.54 m x 2.36 m 8.33 p x 7.75 p
- Salle de bains Niveau rez-de-chaussée 2.36 m x 1.68 m 7.75 p x 5.50 p
Gracieuseté de : Choice Realty Systems
Le contenu des inscriptions fournies par REALTOR.ca a été autorisé par les membres de l'Association canadienne de l'immeuble.
Le contenu de cette inscription est fourni par REALTOR.ca et a été autorisé par les membres de l'Association canadienne de l'immeuble.
Photos supplémentaires


















