Montréal (L'Île-Bizard/Sainte-Geneviève) QC, H9C 2T4
Remarques :
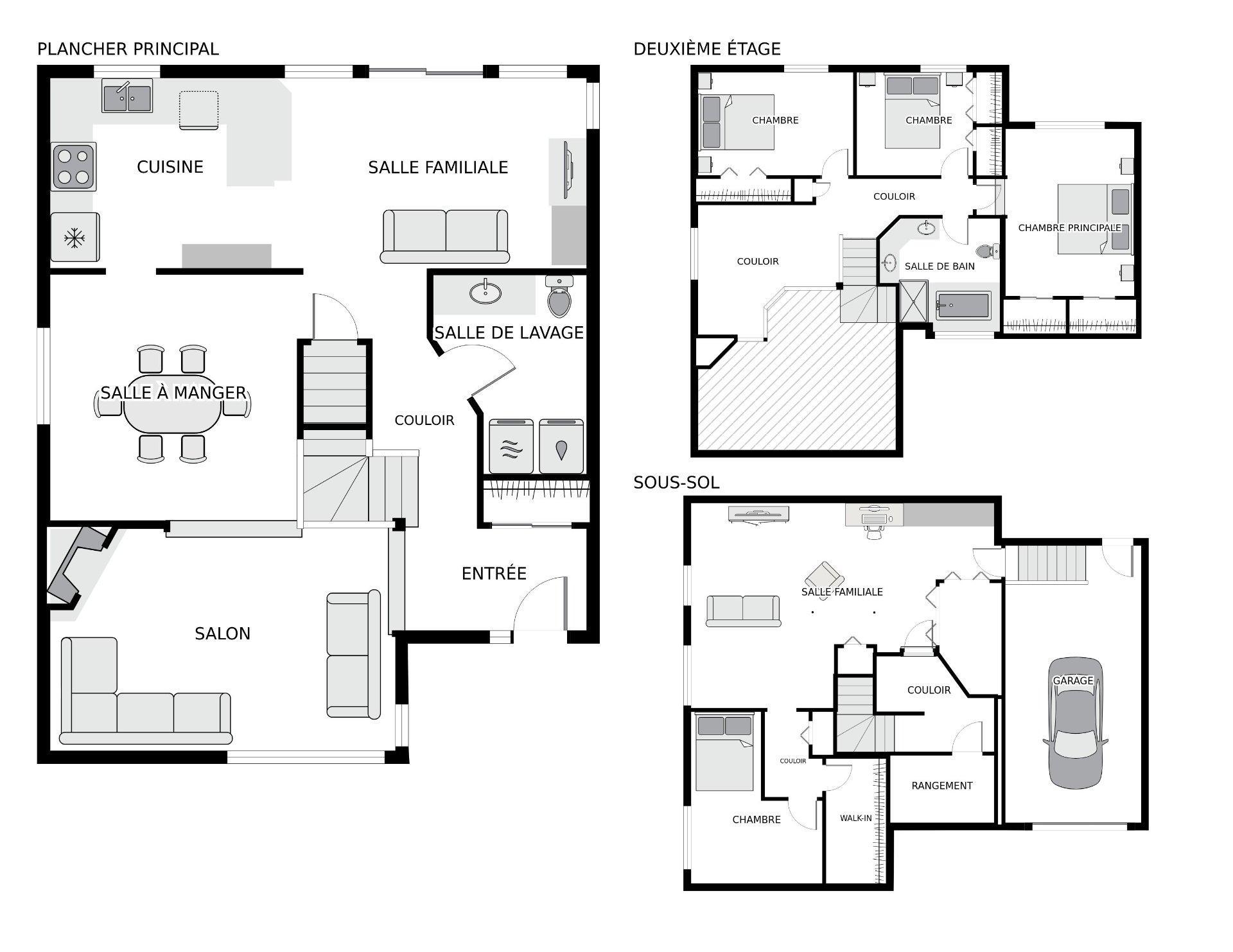
Superbe maison à étages très bien entretenue, située dans un secteur recherché de L'Île-Bizard. Adossée à un parc tranquille, cette propriété offre une tranquillité exceptionnelle et un cadre de vie privilégié. Elle propose 3 chambres à l'étage plus une mezzanine, deux salles de bain complètes (une à l'étage et une au sous-sol), ainsi qu'une salle d'eau au rez-de-chaussée. Le salon lumineux est doté d'un foyer au bois et d'un puits de lumière. Le sous-sol entièrement aménagé inclut une chambre supplémentaire et une vaste salle de jeux. L'allée en pavé uni peut accueillir jusqu'à 5 voitures. Une opportunité rare dans un environnement paisible.
Bienvenue au 560 Rue Maugue
une élégante maison à étages très bien entretenue, située dans l'un des secteurs les plus prisés de L'Île-Bizard.
Offrant une rare combinaison de tranquillité absolue et de confort moderne, cette propriété adossée à un parc paisible propose un cadre de vie privilégié où sérénité et qualité se rencontrent.
Dès les premiers instants, la luminosité exceptionnelle des pièces principales vous charme, magnifiée par un puits de lumière au salon. Le foyer au bois ajoute une touche de raffinement intemporel, créant une ambiance chaleureuse et accueillante, idéale pour des moments de détente.
La cuisine rénovée allie fonctionnalité et esthétique, avec un comptoir-lunch intégré à la salle familiale attenante, idéale pour la vie quotidienne. Une salle à manger distincte permet de recevoir avec élégance, tandis qu'une salle d'eau complète le rez-de-chaussée.
À l'étage, trois chambres a cocher bien aménagées s'ajoutent à une mezzanine polyvalente pouvant servir d'espace de travail, de lecture ou de détente. Une salle de bain complète rénovée vient compléter ce niveau.
Le sous-sol entièrement aménagé propose une vaste salle de jeux, une chambre additionnelle ainsi qu'une salle de bain complète, offrant un espace parfait pour les invités, les adolescents ou une zone de loisirs dédiée.
À l'extérieur, la cour intime bordée de haies crée un havre de paix idéal pour profiter de la nature environnante. L'allée en pavé uni, élégante et durable, peut accueillir jusqu'à cinq voitures en plus du garage attaché.
Une demeure rare alliant espace, confort et prestige dans un environnement paisible et recherché de L'Île-Bizard.
**Ne manquez pas cette occasion unique d'acquérir une propriété exceptionnelle dans un secteur très recherché. Planifiez votre visite dès aujourd'hui.**
Inclusions: Tous les lumières permanent,Tous les stores, tringles et rideaux, aspirateur central et accessoire, system d'alarme ,armoire de rangement au sous-sol, étagère de coin au sous-sol, ouvre porte électrique avec 2 télécommande, cabanon, spa(pas utilise depuis 2022 vendu sans garantie au risk et peril d'acheter)
Exclusions : trois bidet dans les salle de bains, lave vaisselles.
Particularités du bâtiment :
- Style: Maison détachée
- Allée: Pavé uni
- Appareils en location (mensuel): Chauffe-eau
- Armoires de cuisine: Bois
- Dimensions : 12.23 x 10.68 METRE
- Équipement disponible: Installation aspirateur central, Détecteur d'incendie, Système d'alarme, Thermopompe centrale
- Fenestration: Bois
- Fondation: Béton coulé
- Foyer: Oui
- Foyer-Poêle: Foyer au bois
- Garage: Chauffé, Intégré
- Proximité: Garderie/CPE, Golf, Parc, Piste cyclable, École primaire, Ski de fond
- Revêtement: Brique, Vinyle
- Revêtement de la toiture: Bitume et gravier
- Sous-sol: 6 pieds et plus, Totalement aménagé
- Stationnement: Oui
- Terrain: Clôturé, Paysager
- Type de fenestration: Manivelle (battant)
- Mode de chauffage: Air soufflé (pulsé)
- Approvisionnement en eau: Municipalité
- Système d'égouts: Municipalité
Taxes:
- Taxes municipales: 3 933 $
- Taxe scolaire: 419 $
- Taxes annuelles totales: 4 352 $
Property Assessemnt:
- Évaluation du terrain: 192 500 $
- Évaluation de l'immeuble: 393 600 $
- Évaluation totale: 586 100 $
Caractéristiques :
- Bâti en: 1987
- Chambres : 3+1
- Dimensions du terrain : 560.00 Mètres carrés
- Irregular: Oui
- Largeur du terrain en façade : 20.0 Mètre
- Profondeur du terrain : 27.5 Mètre
- Salle(s) de bains : 2
- Salle(s) d'eau : 1
- Zonage: RESI
- Nbre d'espaces de stationnement: 6
Détails des pièces :
- Salon Rez-de-chaussée 5.28 m x 3.40 m 17.4 p x 11.2 p Plancher : Parqueterie
- Salle à dîner Rez-de-chaussée 3.78 m x 3.78 m 12.5 p x 12.5 p Plancher : Parqueterie
- Cuisine Rez-de-chaussée 3.68 m x 2.90 m 12.1 p x 9.6 p Plancher : Céramique
- Salle familiale Rez-de-chaussée 4.55 m x 2.92 m 14.11 p x 9.7 p Plancher : Céramique
- Salle d'eau - Irrégulier Rez-de-chaussée 2.29 m x 3.05 m 7.6 p x 10.0 p Plancher : Céramique Note: Salle de Lavage
- Chambre principale 2e niveau 3.53 m x 5.61 m 11.7 p x 18.5 p Plancher : Bois
- Chambre 2e niveau 3.96 m x 2.82 m 13.0 p x 9.3 p Plancher : Bois
- Chambre 2e niveau 4.27 m x 2.82 m 14.0 p x 9.3 p Plancher : Bois
- Salle de bains 2e niveau 2.29 m x 3.30 m 7.6 p x 10.10 p Plancher : Céramique
- Pièce de détente 2e niveau 3.89 m x 3.63 m 12.9 p x 11.11 p Plancher : Bois
- Salle de jeux Sous-sol 7.98 m x 5.41 m 26.2 p x 17.9 p Plancher : Bois
- Chambre - Irrégulier Sous-sol 3.45 m x 4.52 m 11.4 p x 14.10 p Plancher : Bois
- Salle de bains Sous-sol 1.57 m x 3.30 m 5.2 p x 10.10 p Plancher : Céramique
Convertir la mesure en :
Données fournies par : Centris - 600 Ch Du Golf, Ile -Des -Soeurs, Québec H3E 1A8
Nous croyons que tous les renseignements affichés sont exacts, mais nous ne le garantissons pas; les renseignements devraient être vérifiés de façon indépendante. Aucune garantie ou représentation de quelque nature que ce soit n’est offerte. Droits© 2021 Tous les droits sont réservés.
Tendances des prix du marché immobilier
Emplacement de 560 Rue Maugue, Montréal (L'Île-Bizard/Sainte-Geneviève), QC, H9C 2T4
Données démographiques de 560 Rue Maugue, Montréal (L'Île-Bizard/Sainte-Geneviève), QC, H9C 2T4
Étape de vie
Parents d'âge moyen avec adolescentsType d'emploi
Industrie des services/Cols blancsRevenu moyen du ménage
150 547.25 $Nombre moyen d'enfants
1,82Population à domicile
Structure à domicile
Âge de la population
Éducation
Niveau d'éducation
No certificate/diploma/degree
9.67 %Diplôme d'études secondaires ou équivalent
23.01 %Certificat ou diplôme d'apprentissage ou d'une école de métiers
8.64 %Diplôme d'études collégiales ou d'études postsecondaires (non universitaires)
20.25 %Certificat d'études universitaires
3.52 %Diplômes d'études universitaires
34.91 %Navetteur
Se rendre au travail
En auto
84.38 %En transport en commun
8.15 %À pied
3.89 %À bicyclette
0.06 %Par tout autre moyen
3.52 %Diversité Culturelle
Connaissance des langues officielles
Langue maternelle
Données Sur Le Bâtiment
Type de bâtiment
Appartements (faible hauteur et à étages multiples)
Maisons
100.0 %










































































