Montréal (Montréal-Nord) QC, H1H 3B1
Remarques :
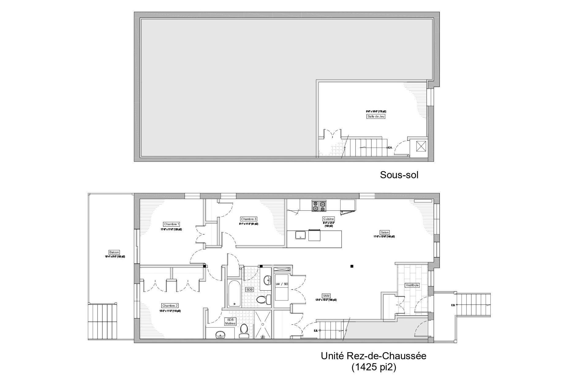
Condo neuf, lumineux et moderne, parfait pour une famille ou un couple souhaitant allier confort, style et vie pratique dans un secteur très recherché de Montréal-Nord.
- 3 chambres spacieuses, idéales pour toute la famille
- 2 salles de bain modernes et fonctionnelles
- Finitions et matériaux de qualité supérieure pour un style contemporain
- Espace de vie lumineux et à aire ouverte
- Quartier recherché de Montréal-Nord, calme et sécuritaire
- À proximité des écoles, parcs, commerces et transports en commun
Garantie GCR (maison neuve) offerte
Stationnement extérieur disponible pour 25,000$ +tx
Bénéficiez d'un remboursement partiel de la TPS et de la TVQ à l'achat d'une maison neuve. Certaines conditions s'appliquent.
Contactez-nous pour plus d'informations!
**Photo et mesures à titre indicatif**
**Frais de copropriété à titre indicatif**
Inclusions: Échangeur d'air récupérateur de chaleur, thermopompe murale, sorties de câbles et téléphone, détecteur de fumée, détecteur de monoxyde de carbone
Particularités du bâtiment :
- Style: Appartement
- Proximité: Autoroute, Cégep, Garderie/CPE, Hôpital, Métro, Parc, Piste cyclable, École primaire, École secondaire, Train de banlieue, Transport en commun
- Stationnement cadastré (exclus du prix): Allée
- Mode de chauffage: Plinthes électriques
- Énergie pour le chauffage: Électricité
- Approvisionnement en eau: Municipalité
- Système d'égouts: Municipalité
Taxes:
- Taxes municipales: 0 $
- Taxe scolaire: 0 $
- Taxes annuelles totales: 0 $
Caractéristiques :
- Bâti en: 2025
- Chambres : 3
- Frais de copropriété : 100 $ Mensuel
- Salle(s) de bains : 2
- Superficie habitable (approx): 1425.0 Pieds carrés
- Zonage: RESI
Détails des pièces :
- Hall d'entrée Rez-de-chaussée 1.96 m x 1.27 m 6.5 p x 4.2 p
- Salon Rez-de-chaussée 4.95 m x 2.74 m 16.3 p x 9.0 p
- Cuisine Rez-de-chaussée 2.44 m x 4.19 m 8.0 p x 13.9 p
- Autre CORRIDOR Rez-de-chaussée 4.62 m x 0.99 m 15.2 p x 3.3 p
- Chambre principale Rez-de-chaussée 4.17 m x 3.96 m 13.8 p x 13.0 p
- Salle de bains Rez-de-chaussée 1.88 m x 2.36 m 6.2 p x 7.9 p
- Chambre Rez-de-chaussée 3.43 m x 2.62 m 11.3 p x 8.7 p
- Chambre Rez-de-chaussée 2.97 m x 2.77 m 9.9 p x 9.1 p
- Salle de lavage Rez-de-chaussée 1.14 m x 1.45 m 3.9 p x 4.9 p
- Salle de bains Rez-de-chaussée 1.88 m x 2.34 m 6.2 p x 7.8 p
- Salle familiale Sous-sol 4.95 m x 2.77 m 16.3 p x 9.1 p
Convertir la mesure en :
Données fournies par : Centris - 600 Ch Du Golf, Ile -Des -Soeurs, Québec H3E 1A8
Nous croyons que tous les renseignements affichés sont exacts, mais nous ne le garantissons pas; les renseignements devraient être vérifiés de façon indépendante. Aucune garantie ou représentation de quelque nature que ce soit n’est offerte. Droits© 2021 Tous les droits sont réservés.
Tendances des prix du marché immobilier
Emplacement de 11377 Av. L'Archevêque, Montréal (Montréal-Nord), QC, H1H 3B1
Données démographiques de 11377 Av. L'Archevêque, Montréal (Montréal-Nord), QC, H1H 3B1
Étape de vie
Jeunes couplesType d'emploi
Industrie des servicesRevenu moyen du ménage
79 947.26 $Nombre moyen d'enfants
1,80Population à domicile
Structure à domicile
Âge de la population
Éducation
Niveau d'éducation
No certificate/diploma/degree
27.09 %Diplôme d'études secondaires ou équivalent
25.8 %Certificat ou diplôme d'apprentissage ou d'une école de métiers
17.62 %Diplôme d'études collégiales ou d'études postsecondaires (non universitaires)
16.84 %Certificat d'études universitaires
1.27 %Diplômes d'études universitaires
11.37 %Navetteur
Se rendre au travail
En auto
63.63 %En transport en commun
29.76 %À pied
2.48 %À bicyclette
0.0 %Par tout autre moyen
4.13 %Diversité Culturelle
Connaissance des langues officielles
Langue maternelle
Données Sur Le Bâtiment
Type de bâtiment
Appartements (faible hauteur et à étages multiples)
67.22 %Maisons
32.78 %








































