Saint-Louis-De-Gonzague QC, J0S 1T0
Remarques :
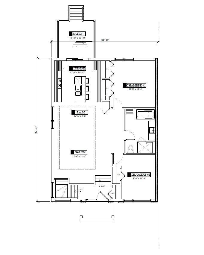
Maison de type unifamilial jumelée détenue en copropriété divise. Superbe bungalow jumelé offrant deux chambres à coucher de bonnes dimensions et un grand rez-de-chaussée à aire ouverte. La cuisine moderne avec îlot s'ouvre sur la salle à manger et le salon lumineux, créant un espace convivial et spacieux. Une salle de bain complète avec douche en céramique se trouve également à ce niveau. Le sous-sol quand à lui pourra être aménagé selon vos goûts et vos besoins.
- Les frais de copropriété inclus un frais de plus ou moins 1250$ par année pour les assurances du Syndicat de copropriété
ainsi qu'un frais de plus ou moins 47$ pour les déclarations annuelles au registre des entreprises et un frais de 115$ pour le
fond de prévoyance.
- Les photos sont à titre indicatif seulement et représente le modèle à 1 chambre à coucher.
- Maison de type unifamilial jumelée détenue en copropriété divise.
- Quartier situé en bordure du Canal de Beauharnois avec rampe de mise à l'eau et sa piste cyclable de 72km.
- Emplacement idéal près de l'école primaire, de parcs et de garderies. Accès rapide à l'autoroute 30 et à environ 10 minutes
de Valleyfield et de ses atouts.
Inclusions: Céramique dans l'entrée et la salle de bain, rampe en verre, îlot, douche en céramique 36x48, échangeur d'air, deux encastrés dans la cuisine, budget luminaires intérieurs 500$, plomberie et électricité pour laveuse-sécheuse au sous-sol.
Exclusions : Finition du sous-sol, rough plomberie au sous-sol, balayeuse centrale, accessoires de toilette, dosseret de cuisine, thermopompe, paysagement, clôture, crépis, gouttières, pavage du stationnement et trottoir, règlement d'emprunt si applicable.
Particularités du bâtiment :
- Style: Maison jumelée
- Allée: Non pavée
- Armoires de cuisine: Mélamine
- Dimensions : 28.0 x 37.6 Pieds
- Équipement disponible: Adoucisseur d'eau, Échangeur d'air
- Fenestration: PVC
- Fondation: Béton coulé
- Proximité: Garderie/CPE, Parc, Piste cyclable, École primaire, Sentier de motoneige, Sentier de VTT
- Revêtement: Brique, Vinyle
- Revêtement de la toiture: Bardeaux d'asphalte
- Salle de bains: Douche indépendante
- Sous-sol: 6 pieds et plus, Non aménagé
- Stationnement: Oui
- Topographie: Plat
- Type de fenestration: Coulissante, Manivelle (battant)
- Mode de chauffage: Plinthes électriques
- Énergie pour le chauffage: Électricité
- Approvisionnement en eau: Puits artésien
- Système d'égouts: Municipalité
Taxes:
- Taxes municipales: 0 $
- Taxe scolaire: 0 $
- Taxes annuelles totales: 0 $
Dépenses:
- Énergie: 1 412 $
Caractéristiques :
- Chambres : 2
- Dimensions du terrain : 437.00 Mètres carrés
- Irregular: Oui
- Largeur du terrain en façade : 11.5 Mètre
- Profondeur du terrain : 38.0 Mètre
- Salle(s) de bains : 1
- Superficie habitable (approx): 1061.0 Pieds carrés
- Zonage: RESI
- Nbre d'espaces de stationnement: 2
Détails des pièces :
- Hall d'entrée - Irrégulier Rez-de-chaussée 1.22 m x 3.35 m 4.0 p x 11.0 p Plancher : Céramique
- Salon - Irrégulier Rez-de-chaussée 3.66 m x 3.51 m 12.0 p x 11.6 p Plancher : Plancher flottant
- Cuisine - Irrégulier Rez-de-chaussée 3.76 m x 3.25 m 12.4 p x 10.8 p Plancher : Plancher flottant
- Salle à dîner - Irrégulier Rez-de-chaussée 3.66 m x 2.44 m 12.0 p x 8.0 p Plancher : Plancher flottant
- Chambre principale - Irrégulier Rez-de-chaussée 3.71 m x 3.76 m 12.2 p x 12.4 p Plancher : Plancher flottant
- Chambre - Irrégulier Rez-de-chaussée 2.92 m x 3.56 m 9.7 p x 11.8 p Plancher : Plancher flottant
- Salle de bains - Irrégulier Rez-de-chaussée 2.44 m x 3.66 m 8.0 p x 12.0 p Plancher : Céramique
Convertir la mesure en :
Données fournies par : Centris - 600 Ch Du Golf, Ile -Des -Soeurs, Québec H3E 1A8
Nous croyons que tous les renseignements affichés sont exacts, mais nous ne le garantissons pas; les renseignements devraient être vérifiés de façon indépendante. Aucune garantie ou représentation de quelque nature que ce soit n’est offerte. Droits© 2021 Tous les droits sont réservés.
Tendances des prix du marché immobilier
Emplacement de 89Z Rue des Pêcheurs, Saint-Louis-de-Gonzague, QC, J0S 1T0
Données démographiques de 89Z Rue des Pêcheurs, Saint-Louis-de-Gonzague, QC, J0S 1T0
Étape de vie
Familles avec préadolescentsType d'emploi
Cols bleus/PrimaireRevenu moyen du ménage
106 000.00 $Nombre moyen d'enfants
2,00Population à domicile
Structure à domicile
Âge de la population
Éducation
Niveau d'éducation
No certificate/diploma/degree
20.13 %Diplôme d'études secondaires ou équivalent
22.82 %Certificat ou diplôme d'apprentissage ou d'une école de métiers
24.16 %Diplôme d'études collégiales ou d'études postsecondaires (non universitaires)
19.46 %Diplômes d'études universitaires
13.42 %Navetteur
Se rendre au travail
En auto
93.2 %En transport en commun
0.0 %À pied
5.83 %À bicyclette
0.0 %Par tout autre moyen
0.97 %Diversité Culturelle
Connaissance des langues officielles
Langue maternelle
Données Sur Le Bâtiment
Type de bâtiment
Appartements (faible hauteur et à étages multiples)
26.92 %Maisons
73.08 %









































